Sostituzione e posa di infissi ad alto taglio termico e acustico. Serramenti di ultima generazione in PVC, alluminio e legno per massimizzare il risparmio energetico, il comfort e la sicurezza della tua casa.
Acquistare un ottimo infisso serve a poco se viene montato male. Sceglierci significa garantirsi una "posa in opera qualificata e certificata": eliminiamo spifferi, infiltrazioni e ponti termici curando meticolosamente l'isolamento del controtelaio. Ti offriamo una consulenza tecnica per scegliere il materiale perfetto (PVC, alluminio a taglio termico, legno o sistemi ibridi) in base alla tua zona climatica e alle tue esigenze di budget. Inoltre, gestiamo noi tutte le pratiche ENEA necessarie per farti ottenere le detrazioni fiscali previste per il risparmio energetico.

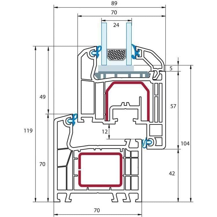
Finestre vecchie, spifferi e vetri singoli sono i principali responsabili della dispersione di calore e dell'ingresso di rumori fastidiosi nella tua abitazione. Con il nostro servizio di fornitura e sostituzione di serramenti e infissi, ti aiutiamo a riqualificare la tua casa migliorandone drasticamente il comfort abitativo. Installiamo finestre di ultima generazione progettate per garantire un isolamento termico e acustico di altissimo livello. Che tu debba rinnovare un appartamento in centro città o una villa indipendente, ti proponiamo soluzioni su misura che uniscono un design elegante a prestazioni tecniche insuperabili, facendoti risparmiare fin da subito sulle bollette del riscaldamento e del condizionamento.
Il nostro catalogo comprende un'ampia selezione di materiali e finiture per adattarsi perfettamente allo stile del tuo immobile. Siamo installatori specializzati di infissi in PVC, la scelta ideale per chi cerca un eccellente rapporto qualità-prezzo e zero manutenzione. Per chi desidera profili minimalisti e vetrate di grandi dimensioni, offriamo serramenti in alluminio a taglio termico, garanzia di massima resistenza e design ultra-moderno. Infine, per gli amanti della tradizione e del calore naturale, proponiamo eleganti finestre in legno o sistemi ibridi in legno-alluminio. Tutte le nostre soluzioni sono equipaggiate con vetrocamere basso-emissive (doppio o triplo vetro) e ferramenta di sicurezza antieffrazione.

Il segreto di un serramento perfetto risiede nella sua installazione. Una finestra eccellente perde gran parte della sua efficacia se montata in modo approssimativo. Per questo i nostri tecnici eseguono esclusivamente una posa in opera qualificata ad alta efficienza, utilizzando nastri autoespandenti, schiume poliuretaniche elastiche e sigillanti specifici per bloccare qualsiasi passaggio d'aria e prevenire la formazione di muffe sul perimetro (il famigerato ponte termico). Completa il rinnovo della tua casa approfittando degli Ecobonus statali attualmente in vigore. Contattaci per un sopralluogo tecnico e richiedi il tuo preventivo gratuito per i nuovi infissi.
Dalla consulenza tecnica iniziale alla consegna delle chiavi. Mettiamo a tua disposizione i migliori artigiani di Trieste per un risultato senza compromessi.
Richiedi Preventivo Online GratuitoProcesso 100% Digitale • Veloce • GratuitoSei un professionista o un'azienda del settore?
Esperti nella fornitura e posa in opera di pavimenti di lusso: dal calore del parquet artigianale all'eleganza dei marmi pregiati, fino alla modernità del grès porcellanato e della resina continua. Soluzioni su misura per interni esclusivi e duraturi.
Servizio di ristrutturazione d'interni "chiavi in mano" per appartamenti, ville e locali commerciali. Dal progetto architettonico alle finiture di pregio, garantiamo tempi certi, un unico referente e massima qualità costruttiva.
Progettazione e realizzazione artigianale di arredi su misura, boiserie e complementi in legno. Soluzioni di alta falegnameria 100% Made in Italy per ottimizzare, personalizzare e impreziosire ogni ambiente della tua casa o attività commerciale.
Manutenzione, isolamento e rifacimento completo di tetti e coperture civili e industriali. Soluzioni all'avanguardia per l'impermeabilizzazione, l'efficienza energetica (tetti ventilati) e la messa in sicurezza del tuo edificio.
Riqualificazione totale degli ambienti più vissuti della casa. Dal rifacimento degli impianti idraulici ed elettrici fino alla posa di rivestimenti e sanitari. Servizio rapido, pulito e chiavi in mano con materiali di prima scelta.
Rasature perfette, spatolati, resine e verniciature di altissima qualità. Trasformiamo le pareti dei tuoi ambienti in vere e proprie superfici d'arredo, garantendo eleganza, durata e massima cura dei dettagli.
Interventi di efficientamento energetico, isolamento acustico e posa di cappotti termici. Riduci drasticamente i consumi in bolletta, elimina muffe e condense, e migliora il comfort abitativo della tua casa in ogni stagione.
Gestione burocratica completa: CILA, SCIA, permessi di costruire e pratiche ENEA per bonus fiscali. Un team di geometri e architetti al tuo fianco per ristrutturare senza pensieri, nel pieno rispetto delle normative vigenti.
Recupero e valorizzazione di immobili storici e di pregio. Utilizziamo tecniche specializzate e materiali bioedili per preservare l'autenticità architettonica, adeguando gli edifici ai moderni standard di comfort e sicurezza.
Controsoffitti, pareti divisorie e velette con integrazione di illuminazione LED. Soluzioni versatili e di design per ridistribuire gli spazi, isolare acusticamente e arredare i tuoi ambienti con il cartongesso.
Progettazione e posa di impianti domotici, idraulici ed elettrici all'avanguardia. Soluzioni integrate per il massimo comfort, la sicurezza totale e l'efficienza energetica della tua abitazione o azienda
Scopri cosa dicono i nostri clienti sulla qualità e professionalità dei nostri interventi.
Sincronizzazione Feed...
Aiutaci a crescere con il tuo feedback
Il tuo feedback ci aiuta a migliorare costantemente i nostri servizi a Trieste.